Appartamento Via Paolo Diana in vendita, Sarzana
Via Paolo Diana | Sarzana
€ 135.000
aggiungi a preferiti
4 Locali |
1 Bagni
| 70 m² di superficie | Piano: Piano intermedio
Descrizione
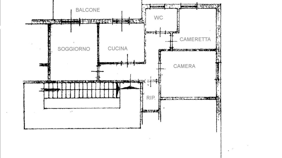
Sarzana località Olmo, comodissimo al centro, in zona residenziale e defilata dal traffico, proponiamo in esclusiva appartamento 4 vani posto al piano secondo, senza ascensore, in stabile condominiale in buono stato di manutenzione. L’immobile è composto da cucina con balcone, soggiorno con balcone, camera matrimoniale, cameretta/studio, ripostiglio, bagno finestrato. Soffitta adibita a locale di sgombero/cantina e posto auto in area condominiale chiusa. Abitabile e libero subito. Spese condominiali basse.
Indirizzo
Indirizzo: Via Paolo Diana | Sarzana
Provincia: La Spezia · Provincia
Comune: Sarzana
Regione: Liguria
CAP: 19038
Nazione: Italia
Apri in Google MapsCaratteristiche
Riferimento annuncio: 001037
Contratto: Vendita
Tipologia: Appartamento
Superficie: 70 m2
Locali: 4
Camere da letto: 2
Bagni: 1
Piano: Piano intermedio
Costi
Prezzo € 135.000
Spese condominiali: 0
Efficienza energetica
A4
A3
A2
A1
A+
A
B
C
D
E
F
Classe: G
G
non disponibile
non classificabile
Stato: abitabile
Anno di costruzione: 1970
Altre caratteristiche
Asta immobiliare?
Escludi aste
Altre Caratteristiche
Non arredato
Planimetria
Virtual Tour
Contattami
Pianifica ?
Immobili simili
Pentalocale SP6 in vendita, Rocchetta di Var...
€ 38.000
LOCALITA’ CASONI, grazioso appartamento con ingresso indipendente disposto su due li Dettagli
LOCALITA’ CASONI, grazioso appartamento con ingresso indipendente disposto su due livelli. Al piano terra sog Dettagli
Pentalocale Piazza Giacomo Matteotti in vend...
€ 210.000
SARZANA – Centro – Appartamento con terrazzo. In una delle poche strade con ac Dettagli
SARZANA – Centro – Appartamento con terrazzo. In una delle poche strade con accesso carrabile del centr Dettagli
Trilocale Via Castagno in vendita, Luni
€ 110.000
Nel contesto residenziale di Casano, nel comune di Luni, proponiamo in vendita un appartam Dettagli
Nel contesto residenziale di Casano, nel comune di Luni, proponiamo in vendita un appartamento quadrilocale su due Dettagli
Quadrilocale Via Visola in vendita, Ameglia
€ 240.000
Ameglia, a pochi minuti dal mare e a soli 2 km dalle spiagge di Bocca di Magra e Fiumarett Dettagli
Ameglia, a pochi minuti dal mare e a soli 2 km dalle spiagge di Bocca di Magra e Fiumaretta, dove il profumo della Dettagli





