aggiungi a preferiti
Descrizione
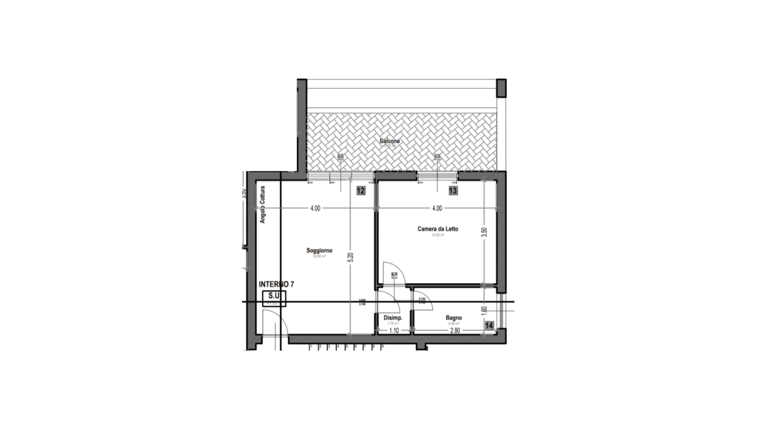
QUANTITA’: ampio soggiorno con angolo cottura, camera matrimoniale, disimpegno, bagno ed ampio balcone. Posto auto in area condominiale chiusa da sbarra.
QUALITA’: nuova costruzione, dotata di ogni nuova tecnologia. Ascensore. Pannelli solari. Impianto di riscaldamento autonomo. Vani ampi e regolari. Fine costruzione inizio 2027.
DATI CATASTALI: in corso di costruzione.
PAGAMENTO: anche con finanziamento ipotecario al 70 % e con ammortamento sino a 30 anni. CasaMercato è convenzionato con primaria società di mediazione creditizia che può offrire una consulenza gratuita su ogni tipo di strumento finanziario teso all’acquisto di immobili: chiedi informazioni alla visita.—– SONO GRADITE LE PERMUTE ——-
PERMUTA: se vuoi chiedi del servizio gratuito di permuta indiretta.
APE: A++
CODICE: RM 107
Indirizzo
Caratteristiche
Costi
Efficienza energetica
A4
A3
A2
A1
A+
A
B
C
D
E
F
G
non disponibile
non classificabile




