Altre opzioni di ricerca
Altre opzioni di ricerca
Abbiamo trovato 0 risultati. Tutti i risultati >
I tuoi risultati di ricerca
Loft Via Ugo Foscolo in vendita, Torino
Via Ugo Foscolo 6 | Torino
€ 415.000  

aggiungi a preferiti

Descrizione

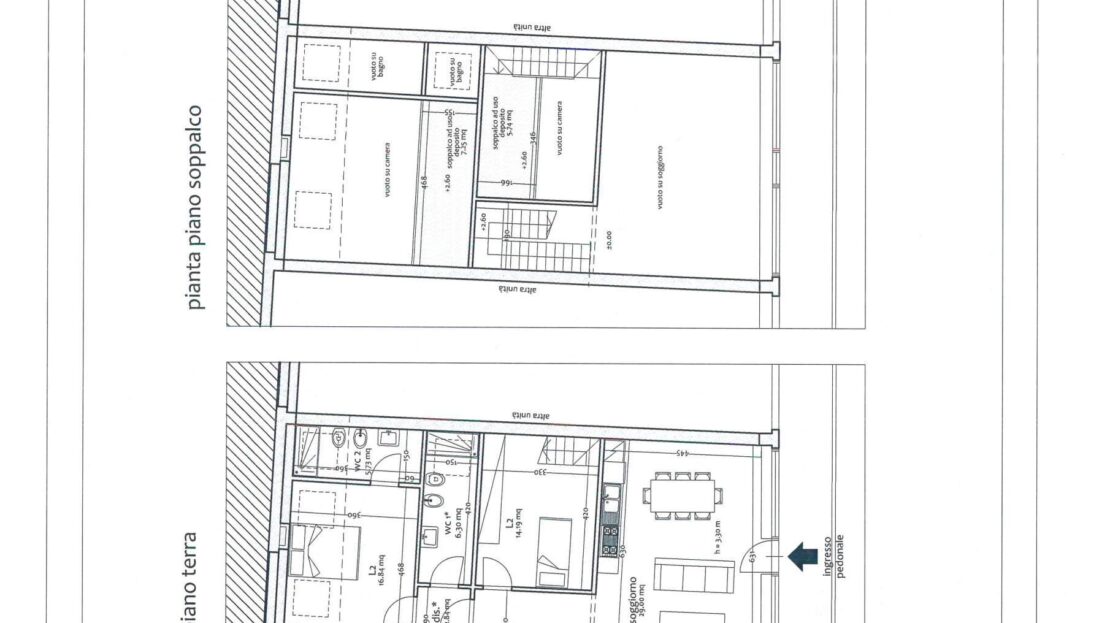
Torino San Salvario pressi Università. Vendiamo loft varie metrature di nuova ristrutturazione con soppalco e terrazzino. consegna fine 2026. Appartamento al piano terra composto da ingresso su soggiorno con cucina abitabile disimpegno due camere e doppi servizi. dal soggiorno con scala privata si accede al terrazzino di 23 mq. Possibilità acquisto box auto al piano interrato o posto auto al piano terra.
rif Giorgio Mussa 3351264384
Stampa: Condividi:

Indirizzo

Indirizzo: Via Ugo Foscolo 6 | Torino
Comune:
Regione:
CAP: 10126
Nazione: Italia
Apri in Google Maps

Caratteristiche

Riferimento annuncio: 1024-67
Contratto:
Tipologia:
Superficie: 114 m2
Locali: 5

Costi

Prezzo € 415.000
Spese condominiali: 0

Efficienza energetica

A4

A3

A2

A1

A+

A

B

C

D

E

F

G

Classe: non disponibile

non disponibile

non classificabile

Anno di costruzione: 1960

Altre caratteristiche

Asta immobiliare?
Escludi aste
Altre Caratteristiche
Non arredato

Planimetria

Virtual Tour

Video

Immagine video

Punteggio pedonabilità

Contattami

Pianifica ?

Immobiliare Azimut

`
Contatta l'inserzionista

Contattami

Pianifica ?

Confronto immobili

Immobiliare Azimut