Trilocale Vicolo Galasso in vendita, Trento
Vicolo Galasso | Trento
€ 248.000
aggiungi a preferiti
3.5 Locali |
1 Bagni
| 64 m² di superficie | Piano: Piano intermedio
Descrizione
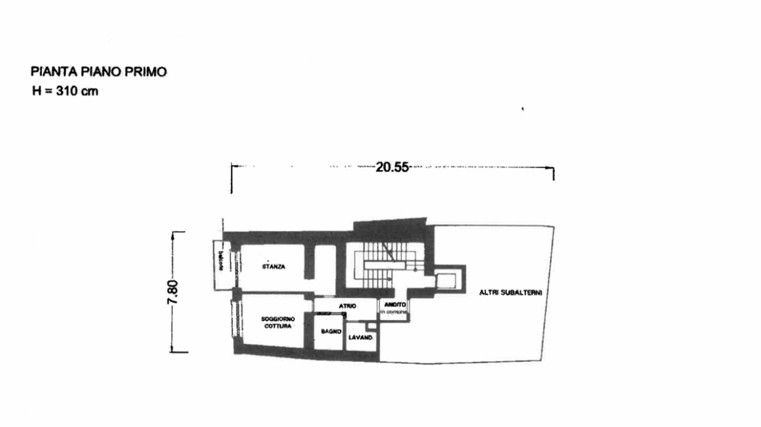
Centro Trento inizio zona traffico limitato. Ampio bilocale al primo piano di una palazzina di 4 servita da ascensore, composto da ingresso, cucinino, zona pranzo, un bagno, due stanze matrimoniali, una cabina armadio. Attualmente locato a studenti universitari con contratto annuale in cedolare. Posizione strategica, comoda a mezzi, università e servizi. Posto bici al piano terra. Possibilità di locazione come due stanze o bilocale con stanza matrimoniale e zone giorno, in entrambi i casi ottima resa. Per maggiori info o visite potete contattarmi al 335 8171671 Erica Res Immobiliare Snc.
Indirizzo
Indirizzo: Vicolo Galasso | Trento
Provincia: Trento · Provincia
Comune: Trento
Regione: Trentino-Alto Adige
CAP: 38122
Nazione: Italia
Apri in Google MapsCaratteristiche
Riferimento annuncio: 356-F-CentroAmpioBilo
Contratto: Vendita
Tipologia: Appartamento
Superficie: 64 m2
Locali: 3.5
Bagni: 1
Piano: Piano intermedio
Costi
Prezzo € 248.000
Spese condominiali: 0
Efficienza energetica
A4
A3
A2
A1
A+
A
B
Classe: C
C
D
E
F
G
non disponibile
non classificabile
Stato: abitabile
Altre caratteristiche
Asta immobiliare?
Escludi aste
Altre Caratteristiche
Arredato
Ascensore
Planimetria
Virtual Tour
Contattami
Pianifica ?
Immobili simili
Quadrilocale Via Cagliari in vendita, Trento
€ 355.000
Vendesi in via Cagliari (inizio Viale Verona), appartamento in ottimo stato composto da in Dettagli
Vendesi in via Cagliari (inizio Viale Verona), appartamento in ottimo stato composto da ingresso, ampio soggiorno c Dettagli
Trilocale Vicolo Galasso in vendita, Trento
€ 228.000
Centro Storico. Proponiamo bilocale in pieno centro storico, già locato a studenti univers Dettagli
Centro Storico. Proponiamo bilocale in pieno centro storico, già locato a studenti universitari. Posizione strategi Dettagli
Pentalocale Vicolo Galasso in vendita, Trent...
€ 350.000
Centro Storico. Ideale per investitori o chi cerca una rendita stabile! Proponiamo apparta Dettagli
Centro Storico. Ideale per investitori o chi cerca una rendita stabile! Proponiamo appartamento con 4 camere per un Dettagli



