Quadrilocale Via della Prepositura in vendita, Trento
Via della Prepositura | Trento
€ 325.000
aggiungi a preferiti
5 Locali |
1 Bagni
| 113 m² di superficie | Piano: Piano intermedio
Descrizione
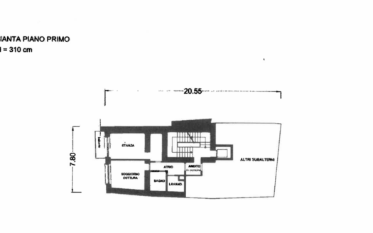
In zona centrale di Trento, vendesi ampio quadrilocale al quarto piano servito da ascensore: atrio di ingresso, soggiorno (in alternativa la terza camera da letto), cucina con sala da pranzo, bagno finestrato, 2 grandi camere, 2 balconi. Spaziosa cantina al piano interrato. Appartamento ideale come residenza o come investimento per affitto a studenti.
Per maggiori informazioni e visite: R.E.S. immobiliare 04611720532 – 3391389549
Per maggiori informazioni e visite: R.E.S. immobiliare 04611720532 – 3391389549
Indirizzo
Indirizzo: Via della Prepositura | Trento
Provincia: Trento · Provincia
Comune: Trento
Regione: Trentino-Alto Adige
CAP: 38122
Nazione: Italia
Apri in Google MapsCaratteristiche
Riferimento annuncio: 339-R-Prepositura2
Contratto: Vendita
Tipologia: Appartamento
Superficie: 113 m2
Locali: 5
Camere da letto: 2
Bagni: 1
Piano: Piano intermedio
Costi
Prezzo € 325.000
Spese condominiali: 0
Efficienza energetica
A4
A3
A2
A1
A+
A
B
C
D
E
F
G
Classe: non disponibile
non disponibile
non classificabile
Stato: abitabile
Anno di costruzione: 1970
Altre caratteristiche
Asta immobiliare?
Escludi aste
Esterni
Balcone
Cantina
Altre Caratteristiche
Ascensore
Cucina abitabile
Non arredato
Planimetria
Virtual Tour
Contattami
Pianifica ?
Immobili simili
Trilocale Vicolo Galasso in vendita, Trento
€ 248.000
Centro Trento inizio zona traffico limitato. Ampio bilocale al primo piano di una palazzin Dettagli
Centro Trento inizio zona traffico limitato. Ampio bilocale al primo piano di una palazzina di 4 servita da ascenso Dettagli
Trilocale Via dei Falchi, Vaneze, Trento
€ 127.500
Monte Bondone, Vaneze, vendesi appartamento immerso nel bosco, in piccolo contesto condomi Dettagli
Monte Bondone, Vaneze, vendesi appartamento immerso nel bosco, in piccolo contesto condominiale di poche unità, al Dettagli
Trilocale Vicolo Galasso in vendita, Trento
€ 228.000
Centro Storico. Proponiamo bilocale in pieno centro storico, già locato a studenti univers Dettagli
Centro Storico. Proponiamo bilocale in pieno centro storico, già locato a studenti universitari. Posizione strategi Dettagli
Pentalocale Vicolo Galasso in vendita, Trent...
€ 350.000
Centro Storico. Ideale per investitori o chi cerca una rendita stabile! Proponiamo apparta Dettagli
Centro Storico. Ideale per investitori o chi cerca una rendita stabile! Proponiamo appartamento con 4 camere per un Dettagli





